Kleine Hütte Haus Pläne mit Loft und Veranda für Herbst
Von Courtney Pittman
Mit rustikalem Charme und effiziente Layouts, diese kleine Hütte Haus Pläne mit Loft und Veranda fühlen sich perfekt für Herbst – und wir sind hier für sie. Ein weiterer Pluspunkt? Die Hüttendesigns bieten eine beeindruckende Attraktivität und Erschwinglichkeit. Schnappen Sie sich Ihren Lieblings-Kürbisgewürz-Drink und schauen Sie sich einige unserer beliebtesten kleinen Hüttenhaus-Pläne unten an.
Klicken Sie hier, um unsere Sammlung von kleinen Hüttenhaus-Plänen zu erkunden.
Holzhausplan
Sehen Sie sich die gewölbten Decken im Wohnzimmer an
Plan 126-173
Innerhalb und außerhalb fühlt sich dieser Holzhausplan gemütlich und entspannt an. Große Fenster bieten eine schöne Aussicht (und bringen die Natur ins Haus), während die Hauptwohnbereiche offen zueinander sind, um einen reibungslosen Ablauf zu gewährleisten. Sie finden ein Schlafzimmer und ein Badezimmer auf der Hauptebene und eine große Master-Suite auf der zweiten Ebene. Weitere Highlights, die wir lieben: die praktische Abstellkammer und der Loftbereich im Obergeschoss (entdecken Sie diese Ideen für Abstellkammern von Good Housekeeping).


Effizientes Wohndesign
Dieses Design fühlt sich an wie ein friedlicher Rückzugsort
Plan 456-10
Eine geräumige Terrasse, ein hoher Steinkamin und große Fenster machen diesen Hüttenhausplan zu einem lustigen, friedlichen Rückzugsort. Im Inneren erhebt sich eine dramatische Kathedralendecke über dem Wohn-/Essbereich. Ein Kamin wärmt den Raum, während eine zweistöckige Fensterwand für viel natürliches Licht sorgt. Das Esszimmer teilt sich eine praktische Esstheke mit der effizienten Küche. Verpassen Sie nicht die Master-Suite im ersten Stock oder das vielseitige Loft im zweiten Stock (sehen Sie sich diese Loft-Ausbauideen von Real Homes an).


Warmes und einladendes Wohnhaus Plan
Genießen Sie knackige Herbstmorgen auf der einladenden vorderen Veranda
Plan 17-2019
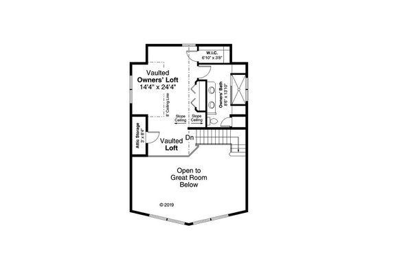
Hier ist ein warmes und einladendes Hüttendesign, das beweist, dass weniger mehr ist. Der gewölbte große Raum und der Essbereich bilden zusammen einen großen Raum, während eine Essbar in der Küche für zwangloses Essen geeignet ist. Ein Schlafzimmer und ein Schlafboden teilen sich die zweite Ebene, komplett mit Bad und Abstellraum. Vordere und hintere Veranda machen es einfach, das Herbstwetter zu genießen.
Vielseitig nutzbarer Dachboden
Der offene Grundriss sorgt für eine angenehme und entspannte Atmosphäre
Plan 23-392
Dieser kleine Hüttenhausplan ist bereit für den Herbst! Mit großzügigen Außenwohnbereichen (einschließlich einer coolen abgeschirmten Veranda an der Vorderseite) ist dieser Entwurf ideal für landschaftlich reizvolle Standorte. Das offene Layout sorgt für eine entspannte Atmosphäre und macht es einfach, sich zwischen dem großen Raum und der Küche zu bewegen. Ein Loft auf der zweiten Ebene kann auf vielfältige Weise genutzt werden.
Kabinenplan mit umlaufender Veranda Veranda
Wärmen Sie sich neben dem Kamin im großen Raum auf
Plan 17-2517
Mit seinem robusten Äußeren und dem unkomplizierten Grundriss, füllt dieses Kabinendesign charmant und komfortabel. Eine große, umlaufende Veranda bietet Ihnen viel Platz zum Entspannen im Freien, wenn das Wetter schön ist. Das große Zimmer verfügt über einen warmen Kamin und öffnet sich zur Küche und zum Esszimmer. Ein Schlafboden auf der zweiten Ebene kann als Home-Office oder ein Spielzimmer genutzt werden.


Fall-Ready Cabin House Plan
Entdecken Sie die großzügige Waschküche in diesem Entwurf
Plan 932-54
Hallo Herbst! Dieser Kabinenplan ist herbsttauglich mit einer großen Terrasse und vielen Fenstern. Ein sehr offener Grundriss zwischen den Hauptwohnbereichen lässt den Raum größer erscheinen als er ist. Die großzügige Waschküche macht es einfach, eine Ladung zu waschen (dekorieren Sie Ihre Waschküche mit diesen Ideen von The Spruce). Auf dieser Ebene finden Sie ein Schlafzimmer und ein Badezimmer, während die Master-Suite und ein kleines Loft die zweite Etage einnehmen.


Traumferienhaus
Erleben Sie die Herbstsaison auf der breiten Veranda
Plan 137-295
Stellen Sie sich vor, Sie bauen dieses Traumferienhaus am See. Eigentlich würde dieser waldige Entwurf mit seiner großzügigen Veranda überall gut aussehen. Der Grundriss im Inneren zeigt den großen Raum, der in die Küche übergeht. Verpassen Sie nicht das flexible Schlafloft im Obergeschoss.


Kopf-.Turning Cabin Plan
Leben Sie groß mit diesem kleinen Design
Plan 124-1158
Schlaue Design-Entscheidungen lassen diesen kopfverdrehenden Kabinen-Hausplan groß leben, von gewölbten Decken bis zu einem coolen Dachboden. Genießen Sie das Leben im Freien und beobachten Sie den Laubfall auf der großzügigen Terrasse. Im Inneren finden Sie ein offenes Layout, ein Arbeitszimmer (das als Home-Office genutzt werden kann), zwei Schlafzimmer und vieles mehr.


Kompaktes Hausdesign
Entdecken Sie die Außenwohnmöglichkeiten in diesem Hausplan
Plan 17-2534
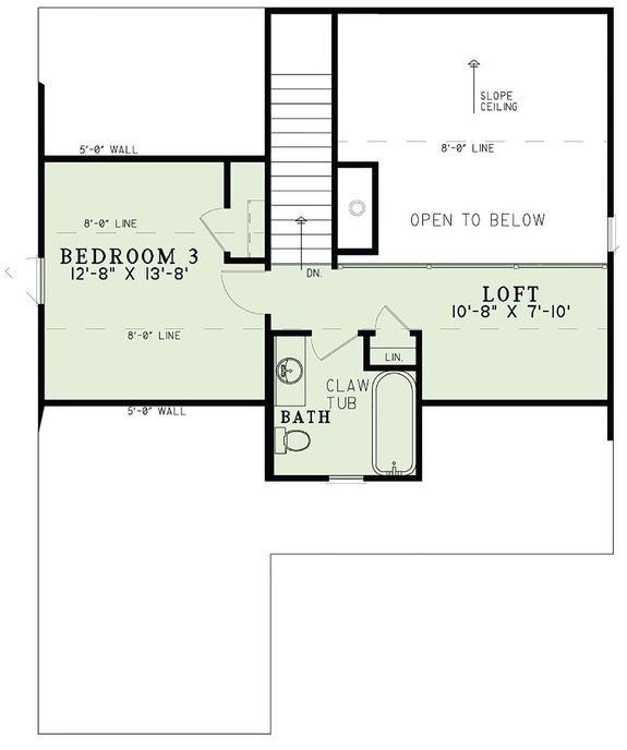
Dieses kompakte Design bietet Ihnen einen nahtlosen Übergang zwischen den Hauptwohnbereichen und einer Kücheninsel. Genießen Sie frische Herbstmorgen auf der Grillveranda oder der abgeschirmten Veranda direkt neben dem großen Raum. Zwei Schlafzimmer und ein Badezimmer befinden sich ebenfalls auf dieser Ebene. Im Obergeschoss befinden sich ein Loft mit Blick auf das große Zimmer, ein weiteres Schlafzimmer und ein Badezimmer.


Entdecken Sie mehr kleine Hüttenhauspläne